Beispiele, welche Häuser zur Verfügung stehen:

X
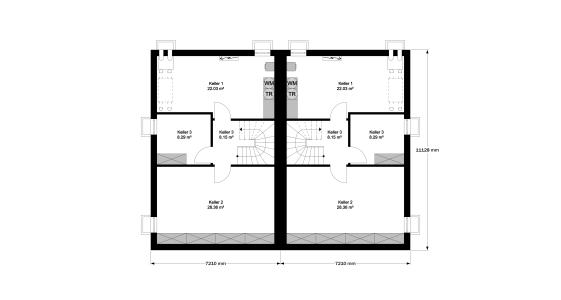
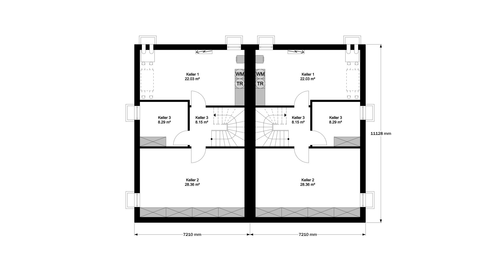
DHH 145-2

Der Preis für diese DHH SCHLÜSSELFERTIG (aber ohne Grundstück!) beträgt ab 369.800 €!

Loading...